







Your Custom Text Here
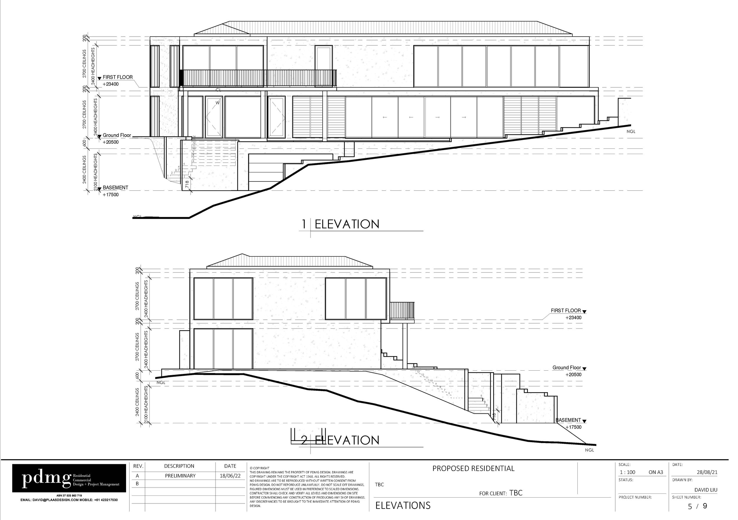
The Chapel Hill House, One of our most exciting residential projects to date, a bold contemporary design on an enviable block of land offering unparalleled lifestyle opportunity. The house fuses robust, finely crafted character with timeless contemporary design.
The Chapel Hill House, One of our most exciting residential projects to date, a bold contemporary design on an enviable block of land offering unparalleled lifestyle opportunity. The house fuses robust, finely crafted character with timeless contemporary design.
info@pdmgstudio.com.au